Gazdálkodna? Itt a remek lehetőség

11400 Nyomtatás Ajánlás Facebook

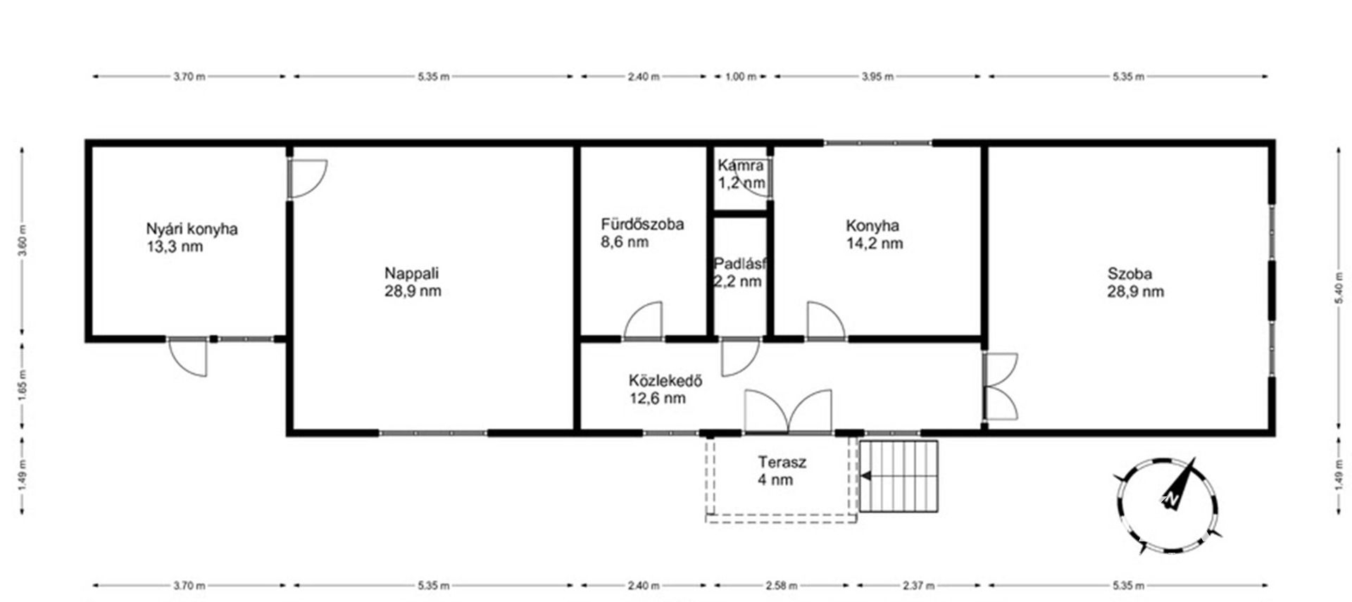
Somogy vármegyében, Csurgó kisváros szomszédságában, a taváról híres Gyékényes település mellett, Porrogszentkirály településen keresi új tulajdonosát ez a tágas családi ház. Az ingatlanhoz hatalmas, közel 7000 nm nagyságú terület tartozik, így aki önellátó gazdálkodást szeretni kialakítani, erre ez a terület tökéletes alapot képezhet. A 112 nm nagyságú ház meghosszabbításában az állattartáshoz szükséges melléképületek találhatóak. A területről csodálatos kilátás látható a környező dombvidékre. Az ingatlan közvetlen közelében bolt és buszmegálló is található.

A lakóépület jó statikai állapotnak örvend, korszerűsítés után kiváló otthon kialakítható belőle. A tulajdonosok a villamoshálózat cseréjét már elvégezték, a további felújítási munkálatok már az új tulajdonosok feladata lesz. A helyiségek fűtéséről a nappaliban elhelyezett cserépkályha, illetve helyiségenként kandalló gondoskodik. Közművek közül a településen minden elérhető, a gáz az udvaron megtalálható.

Valósítsa meg álmait, ez az ingatlan alkalmas rá! Megtekintéshez minden esetben telefonos egyeztetés szükséges!
Stolcz Gábor prémium ingatlanértékesítő (+36 30 5518808)

Stolcz Gábor
PRÉMIUM

Stolcz Gábor

9 éve a Városi Ingatlaniroda tagja
Ingatlanértékesítő
Letenye
+36 (30) 551 8808
Észrevétel a hirdetéssel kapcsolatban
Egy ingatlanos naplója